单链条板链斗式提升机提升矿石粉
双链条板链斗式提升机提升铜屑
板链斗式提升机也叫板链式斗式提升机,简称板链提升机,它采用流入式喂料,物料流入料斗内靠板链提升到顶端,在物料重力作用下自行卸料。

NE型板链斗式提升机是由国外引进先进技术研制的新产品,主要技术参数符合机械部标准(JB3926-85)。采用自流式装料,重力式卸料.链条是优质合金钢高强度板式链条,耐磨而可靠。驱动部分采用硬齿面减速器。该机适用于中、大块和有磨琢性的物料(如石灰石、水泥熟料、石膏、块煤)的垂直输送,物料温度在250℃以下。
NE系列板链提升机在各工业应用极广,正在逐步淘汰HL型等环链式提升机。该系列为流入式喂料,物料流入料斗内靠板链提升到顶端,在物料重力作用下自行卸料。NE系列板链斗式提升机共有11种型号:NE15、NE30、NE50、NE150、NE200、NE300、NE400、NE500、NE600、NE800。

板链斗式提升机分为单链条斗式提升机和双链条斗式提升机,NE30板链斗式提升机及以下型号采用单排链,NE50板链斗式提升机以上型号采用双排链。
单排链:即提升机箱体内只有装一排链条。
双排链:即提升机箱体内安装两排链条,链条挂在料斗两边,双排板链斗式提升机提升量大,性能稳定,是水泥厂、铸造厂、砂石厂、钢厂等行业的常用提升输送设备。NE50板链斗式提升机是常用的一个双排链提升机型号,提升量60立方/小时,箱体尺寸约650*1240mm,链条节距152.4mm,料斗间距304.8mm,料斗宽度300mm。料斗运行速度约0.5m/s。

NE型板链斗式提升机的牵引件为板链,料斗以一定的间隔固定在牵引件上,牵引件经提升机头部和底部的链轮,构成上升的有载分支和下降的无载分支的闭合环形系统,设置在提升机头部的驱动装置经头部链轮将动力传给牵引构件和料斗,物料经设置提升机底部的进料口进入提升机料斗,料斗将物料提升到头部并在头部将物料卸出,离开料斗的物料经设置在提升机头部的卸料口卸出。提升机的料斗和牵引构件头轮底轮安装在全密封的壳体内,实现无粉尘污染的物料输送。

1、板链提升机采用板链传动,减少人工操作,增加工作效率,,提升量为15-800立方/时,提升高度可达60米。
2、对物料的种类、特性要求少,不仅能提升一般的粉料、小颗粒料,而且可提升磨琢性较大的物料,要求温度≤200°C。
3、采取流入式喂料、诱导式卸料,大容量的料斗密集型布置,在物料提升时几乎无回料和挖料现象,因此无效功率少,比环链提升机节省功率30%。
4、结构钢性好,精度高。机壳经折边和中间压凸,经焊接后,刚性好且外观漂亮,产品表面经过喷漆处理,表面光滑,不易掉漆。

1、上部装置:安装有轨道(双排道),防止链条摆动,逆止器,防止料斗回转,物料阻满下部机壳,卸料口装有橡胶板防止回料。
2、中间节:部分中间节装有轨道(双排节),以防止链条工作中摆动,部分中间节装有检修门以便维修。
3、下部装置:安装有张紧装置, NE15~NE50采用弹簧张紧,NE100~NE800采用重锤箱张紧。
4、上下链轮采用 ZG310-570。整体调质,HB229-269齿面淬火HRC40~48。
5、板链:链板采用 45 # HRC36~42,板链提升机链条采用合金钢材经先进的热处理手段加工而成的高强度耐磨链条, 正常连续使用下,确保输送链条使用寿命3-5年。

| 型号 | 提升能力 (m³/h) |
斗速(m/s) | 主轴转数(n/min) | 料 斗 | 链条节距 (mm) |
运行部件重量(Kg/m) | 物料块度(mm) | ||||||
|---|---|---|---|---|---|---|---|---|---|---|---|---|---|
| 容积 (L) |
斗宽 (mm) |
斗距 (mm) |
|||||||||||
| 允许所占百分比% | |||||||||||||
| 10 | 25 | 50 | 75 | 100 | |||||||||
| NE15 | 15 | 约0.5 | 16.54 | 2.5 | 250 | 203.2 | 101.6 | 27.5 | 65 | 50 | 40 | 30 | 25 |
| NE30 | 30 | 约0.5 | 16.54 | 7.8 | 300 | 304.8 | 152.4 | 35 | 90 | 75 | 58 | 47 | 40 |
| NE50 | 60 | 约0.5 | 16.54 | 15.7 | 300 | 304.8 | 152.4 | 64 | 90 | 75 | 58 | 47 | 40 |
| NE100 | 110 | 约0.5 | 14.13 | 35 | 400 | 400 | 200 | 89 | 130 | 105 | 80 | 65 | 55 |
| NE150 | 170 | 约0.5 | 14.13 | 52.2 | 600 | 400 | 200 | 112.5 | 130 | 105 | 80 | 65 | 55 |
| NE200 | 210 | 约0.5 | 10.9 | 84.6 | 600 | 500 | 250 | 134 | 170 | 135 | 100 | 85 | 70 |
| NE300 | 320 | 约0.5 | 10.9 | 127.5 | 700 | 500 | 250 | 188 | 170 | 135 | 100 | 85 | 70 |
| NE400 | 380 | 约0.5 | 8.3 | 182.5 | 700 | 600 | 300 | 205 | 205 | 165 | 125 | 105 | 90 |
| NE500 | 470 | 约0.5 | 7.1 | 260.9 | 700 | 700 | 350 | 223 | 240 | 190 | 145 | 120 | 100 |
| NE600 | 600 | 约0.5 | 7.1 | 330.2 | 800 | 700 | 350 | 350 | 240 | 190 | 145 | 120 | 100 |
| NE800 | 800 | 约0.5 | 6.2 | 501.8 | 800 | 800 | 400 | 313 | 270 | 220 | 165 | 135 | 110 |
型号说明:NE板链斗式提升机是通过牵引件上料斗来输送物料的,因此计算方式就是料斗的容积乘以每小时通过的料斗数量。举例来说,NE30链条运行速度约0.5m/s,斗距304.8mm,料斗容积应该计算料斗中阴影部分的容积,经过计算大约为5.5L,技术参数表中只为参考。
(0.5*3600)/304.8*5.5=32.48
即NE30斗式提升机输送量理论值为32.48立方/小时,实际生产中会稍微小于这个量。

| 斗提机型号 | TD100 | TD160 | TD250 | TD315 | TD400 | TD500 | |
| 轮廓高度L | C+1100 | C+1363 | C+1535 | C+1640 | C+1790 | C+1865 | |
| 整机结构 | H H4 S |
C-820 600 200 |
C-930 700 250 |
C-1250 800 250 |
C-1245 850 250 |
C-1500 950 250 |
C-1700 900 250 |
| 料斗 | t b |
200 100 |
350/280 160 |
450/360 250 |
500/400 315 |
560/480 400 |
625/500 500 |
| 地脚孔 | a3 b3 n3 d3 |
200 310 8 Φ18 |
250 400 8 Φ18 |
300 538 8 Φ18 |
300 648 8 Φ18 |
400 768 8 Φ22 |
400 900 8 Φ22 |
| 上、下部机壳及外形轮廓 | H3 H6 A2 A6 A7 B2 B4 B5 |
970 1210 692 776 1050 220 370 330 |
1185 1500 985 996 1235 295 461 475 |
1320 1800 1175 1266 1600 394 596 610 |
1488 1800 1200 1266 1700 440 706 710 |
1500 2000 1350 1558 1980 535 828 835 |
1655 2300 1410 1610 2200 605 980 1000 |
| 中部机壳 | A4 A5 B3 |
776 805 390 |
982 1021 525 |
1152 1302 682 |
1254 1400 794 |
1548 1580 920 |
1570 1630 1040 |
| 卸料口 | H1 A3 a1 a2 a3 b1 b2 b3 n1 d1 |
520 438 334 120 390 224 95 280 12 Φ12 |
630 548 365 150 431 315 150 381 12 Φ12 |
750 713 600 200 676 450 200 526 12 Φ12 |
795 763 560 230 638 560 230 638 12 Φ12 |
850 824 670 295 758 670 295 758 12 Φ14 |
1000 885 700 355 880 780 300 800 12 Φ18 |

| 型号 | 节距 | 滚子直径 | 销轴直径 | 销轴长度 | 内节内宽 | 链板 | 龟坂宽 | 安装孔 | 孔径 | 备注 |
| P | D | d | L | W | H×T | H1 | L1×L2 | d1 | ||
| mm | mm | mm | mm | mm | mm | mm | mm | mm | ||
| NE15 | 101.6 | 26.5 | 11.5 | 70 | 27 | 35×6 | 40×90 | 12 | 图示一 | |
| NE30 | 152.4 | 36 | 15.5 | 90 | 36.5 | 50×8 | 60×120 | 14 | 图示一 | |
| NE50 | 152.4 | 36 | 15.5 | 90 | 36.5 | 50×8 | 110 | 75×70 | 14 | 图示二 |
| NE100 | 200 | 44.5 | 19.1 | 120 | 51.8 | 60×10 | 125 | 100×80 | 18 | 图示二 |
| NE150 | 200 | 48.5 | 22.2 | 126 | 57.6 | 75×10 | 125 | 100×80 | 18 | 图示二 |
| NE200 | 250 | 63.5 | 31.75 | 146 | 67.4 | 90×12 | 150 | 140×100 | 18 | 图示二 |
| NE300 | 250 | 70 | 35 | 170 | 75 | 100×16 | 150 | 140×100 | 18 | 图示二 |
| NE400 | 300 | 70 | 35 | 170 | 75 | 100×16 | 180 | 170×125 | 22 | 图示二 |
| NE500 | 350 | 140 | 36 | 152 | 66 | 102×14 | 260 | 150×160 | 22 | 图示二 |
| NE600 | 350 | 170 | 44 | 169 | 78 | 122×16 | 220 | 160×160 | 22 | 图示二 |
| NE800 | 400 | 170 | 44 | 169 | 78 | 122×16 | 220 | 200×160 | 22 | 图示二 |
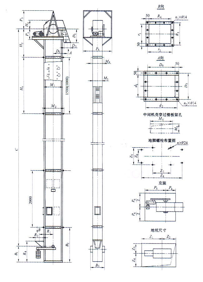
| 型号 | NE15 | NE30 | NE50 | NE100 | NE150 | NE200 | |
| 机壳形式 | I | I | I | I | I | II | |
| 上机壳 | H1 | 523 | 840 | 665 | 741 | 766 | 968 |
| H2 | 1342 | 2265 | 1880 | 2000 | 1700 | 1780 | |
| 卸料口 | D1 | 900 | 955 | 1100 | 1475 | 1300 | 1650 |
| D2 | 800 | 1000 | 1000 | 1200 | 1200 | 1500 | |
| D3 | 250 | 300 | 350 | 350 | 400 | 550 | |
| D4 | 300 | 350 | 400 | 500 | 650 | 650 | |
| d1 | 306/3 | 356/3 | 406/3 | 406/3 | 456/3 | 606/4 | |
| d2 | 356/3 | 406/3 | 456/3 | 556/4 | 706/5 | 706/5 | |
| 平台 | p1 | 1000 | 602 | 777 | 803 | 1200 | 1280 |
| p2 | 104 | 104 | 104 | 130 | 130 | 144 | |
| p3 | 1404 | 2403 | 1827 | 1740 | 1740 | 1864 | |
| p4 | 521 | 620 | 616 | 729 | 720 | 870 | |
| p5 | 1579 | 2041 | 2236 | 2380 | 23800 | 2730 | |
| p6 | 2300 | 2500 | 2500 | 2600 | 3300 | 4100 | |
| 中间机壳 | M1 | 1050 | 1240 | 1240 | 1450 | 1450 | 1750 |
| M2 | 1156 | 1340 | 1348 | 1598 | 1582 | 1888 | |
| M3 | 450 | 500 | 650 | 800 | 1060 | 1120 | |
| M4 | 556 | 600 | 780 | 948 | 1196 | 1280 | |
| M5 | 1250 | 1440 | 1440 | 1680 | 1680 | 1980 | |
| M6 | 650 | 700 | 850 | 1030 | 1290 | 1350 | |
| 喂料口 | R1 | 800 | 970 | 970 | 1125 | 1075 | 1300 |
| R2 | 250 | 300 | 280 | 400 | 500 | 550 | |
| R3 | 250 | 300 | 300 | 400 | 600 | 560 | |
| R4 | 1350 | 1650 | 1700 | 2000 | 2050 | 2400 | |
| r1 | 306/3 | 356/3 | 336/3 | 456/3 | 556/4 | 620/4 | |
| r2 | 306/3 | 356/3 | 356/3 | 456/3 | 656/5 | 630/4 | |
| 下机壳 | B1 | 600 | 750 | 750 | 850 | 900 | 1050 |
| B2 | 2440 | 2440 | 2500 | 2500 | 2500 | 3000 | |
| B3 | 830 | 970 | 996 | 1148 | 1632 | 2102 | |
| 基础尺寸 | Z1 | 1000 | 1200 | 1200 | 1400 | 1400 | 1670 |
| Z2 | 1400 | 1500 | 1500 | 1700 | 1700 | 1850 | |
| Z3 | 950 | 1000 | 1100 | 1200 | 1350 | 1350 | |
| Z4 | 1300 | 1400 | 1700 | 1900 | 2350 | 2350 | |
| Z5 | 554 | 594 | 744 | 916 | 1176 | 1250 | |
| Z6 | 400/1 | 450/1 | 550/1 | 600/1 | 400/1 | 800/1 | |
| Z7 | 1144 | 1334 | 1334 | 1566 | 1566 | 1880 | |
| Z8 | 500/1 | 600/1 | 600/1 | 700/1 | 700/1 | 940/2 | |
NE型板链斗式提升机主要适用于输送生料,水泥,煤炭,焦炭,石灰石,干粘土,熟料,碎石,砂子,化肥,粮食等粉状、颗粒状、小块状磨琢性或无磨琢性物料。广泛应用于矿山、冶金、建材、煤炭、水电、水泥等行业部门垂直提升块状、粉状且物料温度不超过250℃以下的物料。



、1物料的形态:物料是粉状还是颗粒状还是小块状。
2、物料的物理性质:物料有没有吸附性或者粘稠度,是否含水。
3、物料的比重:一般板链斗式提升机参数都是针对堆积比重在1.6以下的物料设计和计算的,太大的物料比重需要进行牵引力和传动部分抗拉强度的计算。
4、单位时间内的输送量:一般来说,物料的形态直接决定物料的卸料方式,常用规律为粉状物料采用离心抛射卸料、块状物料采用重力卸料,而卸料方式的不同决定斗式提升机采用的料斗形式的不同,离心抛射卸料多采用浅斗和弧形斗,而重力卸料需采用深斗。
选型过程如下:物料比重→传动方式(斗提型号)→物料性质→卸料方式→料斗形式→该系列板链提升机的提升量→确定机型。
板链斗式提升机产品制造工艺:等离子/激光下料,冲孔,数控折弯,机器人自动焊接工艺。箱体冲压成形,中间箱体四道筋,采用全焊方式,整体刚性及密封性较强。
大汉机械生产的斗式提升机产品供货内容:头箱,尾箱,中间箱,电机,减速机,逆止器,电机防雨罩,传动皮带/链条防护罩,护栏,平台,吊装件,配重箱(包括但不限于以上内容,具体以实际供货内容为准。)


Copyright ? 2008-2024 螺旋输送机厂家-新乡市大汉振动机械有限公司 All Rights Reserved 版权所有
网站备案号:豫ICP备09002479号-47







