管式螺旋输送机等采用ISO1050-75标准,设计制造符合ZBJ81005.1~2-88《 LS螺旋输送机 》专业标准,提供低碳钢(喷漆或镀锌)、不锈钢和塑料三种材质,以适应客户的要求和现场环境,管式螺旋输送机管径范围100mm-1250mm,所有机器均可量身定制,以适应个性化需求。

大汉管式螺旋输送机型号分为LS型和GX型:LS型螺旋输送机适合水平和小倾角布置,倾角以不超过20°为宜,工作环境温度通常为-20~50℃,输送物料温度小于200℃。GX型是LS型的换代产品,输送倾角一般小于200°。
介绍视频
垂直螺旋输送机输送饲料
管式螺旋输送机每种类型都有其特定的应用场景和优势。根据具体的物料特性和输送需求,选择适合的管式螺旋输送机类型可以提高输送效率和运行稳定性。

按输送方式分类:
管式螺旋输送机可根据输送物料的性质及应用行业选择碳钢或不锈钢材质,另外还可选择有轴或无轴两种设计(无轴更适合输送潮湿的、带粘性、糊状等易缠绕的物料)。
水平管式螺旋输送机:主要用于水平方向的输送。
倾斜管式螺旋输送机:可用于倾斜输送,角度可根据需要调整。
垂直管式螺旋输送机:适用于垂直方向的输送,常见于提升物料的场合。
按材料分类:
不锈钢管式螺旋输送机:适用于对卫生要求高的行业,如食品、医药等。
碳钢管式螺旋输送机:常用于一般工业领域,具有良好的耐磨性和强度。
按结构分类:
有轴螺旋输送机:适用于对输送精度要求较高的场合。
无轴螺旋输送机:安装维护方便,适用于对输送精度要求不高的场合。
管式螺旋输送机用于输送粉状或颗粒状物料,可水平、倾斜、垂直布置,广泛应用在混凝土生产(用于粉煤灰,填料粉尘,硅粉),预混合的建筑材料(干灰泥,沙子,水泥,添加剂),玻璃加工(碳酸钙,苏打水,沙土)等),铸造厂(砂,膨润土)等。

管式螺旋输送机在各个行业中都有广泛的应用,主要包括但不限于以下领域:
食品加工行业:用于输送粮食、糖果、蔬菜、肉类等食品原料或成品,如面粉的输送、糖果的包装等。
化工行业:用于输送化工原料、颗粒、颜料、化肥等物料,如颗粒状化工产品的输送和混合。
建筑材料行业:用于输送水泥、砂子、煤灰等建筑材料,如混凝土搅拌站的原料输送。
冶金行业:用于输送矿石、渣渣、矿粉等物料,如铁矿石的输送和处理。
农业领域:用于输送饲料、谷物、肥料等农业物料,如饲料生产线中的原料输送。
矿山行业:用于输送煤炭、矿石、矿渣等物料,如煤矿的物料输送系统。
能源行业:用于输送木屑、生物质颗粒等能源原料,如生物质能源生产中的颗粒输送。
管式螺旋输送机具有许多优势,使其成为许多行业中常用的物料输送设备。以下是一些管式螺旋输送机的优势:

1.承载能力大、安全可靠,单机输送长度可达60m。
2.可布置成水平或倾斜输送形式(倾角GX型小于200、LS型小于150)
3.适应性强、安装维修方便,出料端设有清扫装置,进出料口位置布置灵活,寿命长。
4.整机体积小、转速高、确保快速均匀输送。
5.密封性好、外壳采用无缝钢管制作,端部采用法兰互相连接成一体,刚性好。
一般的管式螺旋输送机通常由螺旋机本体、进出装置、驱动装置三大部分组成。

螺旋机本体由头节、中间节、尾节三种组成。一般情况下,出厂总装时将中间节按长度长短依次排列,中间节靠近头节,相同长度的中间节则挨在一起,如果有特殊要求,则在订货时给出排列顺序。
在头节内装有支推轴承承受轴向力,在中间节和尾节内装有用轴承支承螺旋轴,此外,在尾节内还装有可轴向移动的径向轴承以补偿螺旋轴长度的误差和适应温度的变化。螺旋面的形式有实体螺旋(S制法)和带式螺旋(D制法)两种。各螺旋轴之间采用法兰式联接,保证了联接轴的互换性,便于维修。机盖为瓦片式并用盖扣夹紧在机壳上,若需改进密封性能,用户可自行在机盖与机壳间加防水粗帆布。
进、出料装置有进料口,方型出料口,手推式出料口,齿条式出料口四种。由用户在使用现场在机体上开口焊接。布置进、出料口位置时应注意保证料口至端部的距离,同时避免料口与吊轴承加油杯、机壳联接法兰、底座等相碰。驱动装置有ZQ系列减速器+Y系列电动机,YTC齿轮减速电机两种。

管式螺旋输送机利用旋转的螺旋将被输送的物料沿固定的机壳内推移而进行输送工作,头部及尾部轴承移至壳体外,吊轴承采用滑动轴承设有防尘密封装置,轴瓦一般采用粉末冶金,输送水泥采用毛毡轴瓦,吊轴和螺旋轴采用滑块连接。

| LS型 | 100 | 160 | 200 | 250 | 315 | 400 | 500 | 630 | 800 | 1000 | 1250 |
| GX型 | 200 | 250 | 300 | 400 | 500 | ||||||
| 螺旋直径(mm) | 100 | 160 | 200 | 250 | 315 | 400 | 500 | 630 | 800 | 1000 | 1250 |
| 螺距(mm) | 100 | 160 | 200 | 250 | 315 | 355 | 400 | 450 | 500 | 560 | 630 |
| 转速(r/min) | 140 | 120 | 90 | 90 | 75 | 75 | 60 | 60 | 45 | 35 | 30 |
| 输送量QΦ=0.33(m3/h) | 2.2 | 7.6 | 11 | 22 | 36.4 | 66.1 | 93.1 | 160 | 223 | 304 | 458 |
| 功率Pd 1=10m(KW) | 1.1 | 1.5 | 2.2 | 2.4 | 3.2 | 5.1 | 4.1 | 8.6 | 12 | 16 | 24.4 |
| 功率Pd 1=30m(KW) | 1.6 | 2.8 | 3.2 | 5.3 | 8.4 | 11 | 15.3 | 25.9 | 36 | 48 | 73.3 |
| 转速(r/min) | 120 | 90 | 75 | 75 | 60 | 60 | 45 | 45 | 35 | 30 | 20 |
| 输送量QΦ=0.33(m3/h) | 1.9 | 5.7 | 18 | 18 | 29.1 | 52.9 | 69.8 | 125 | 174 | 261 | 305 |
| 功率Pd 1=10m(KW) | 1.0 | 1.3 | 2.1 | 2.1 | 2.9 | 4.1 | 4.7 | 6.8 | 9.4 | 14.1 | 16.5 |
| 功率Pd 1=30m(KW) | 1.5 | 2.3 | 4.5 | 4.5 | 7 | 8.9 | 11.6 | 20.4 | 28.3 | 42.2 | 49.5 |
| 转速(r/min) | 90 | 75 | 60 | 60 | 45 | 45 | 35 | 35 | 30 | 20 | 16 |
| 输送量QΦ=0.33(m3/h) | 1.4 | 4.8 | 15 | 15 | 21.8 | 39.6 | 54.3 | 97 | 149 | 174 | 244 |
| 功率Pd 1=10m(KW) | 0.9 | 1.2 | 1.9 | 1.9 | 2.5 | 3.4 | 4.3 | 5.4 | 8.1 | 9.5 | 13.3 |
| 功率Pd 1=30m(KW) | 1.2 | 2.2 | 3.8 | 3.8 | 5.4 | 6.8 | 9.2 | 16 | 24.4 | 28.6 | 39.9 |
| 转速(r/min) | 75 | 60 | 45 | 45 | 35 | 35 | 30 | 30 | 20 | 16 | 13 |
| 输送量QΦ=0.33(m3/h) | 1.2 | 3.8 | 11 | 11 | 17 | 31.7 | 46.5 | 73.0 | 99.3 | 139 | 199 |
| 功率Pd 1=10m(KW) | 0.75 | 1.1 | 1.6 | 1.6 | 2.1 | 3.1 | 3.7 | 4.6 | 5.7 | 7.7 | 11 |
| 功率Pd 1=30m(KW) | 1.1 | 1.8 | 3.4 | 3.4 | 4.4 | 5.6 | 8 | 14 | 16.7 | 23.2 | 33 |
GX型:螺旋直径共有150、200、250、300、400、500、600mm等七种规格,机身较短为3m,较长可达70m,级差为0.5m,根据不同现场需要可组成相应输送系统,用于水平或倾角小于20°的单向输送。
LS型:LS型螺旋输送机是GX型螺旋输送机的换代产品,螺旋直径为100~1250mm,共计有十一种规格,驱动方式有单端驱动和双端驱动两种形式;LS型螺旋给料机身长度每0.5m一档,根据不同现场需要可组成相应输送系统,与GX型螺旋输送机一样,用于水平或倾角小于20°的单向输送。

| 规格型号 | F | E | W | L | L1 | L3 | G | L | Q | Y | N | K |
| LS100 | 2500 | 2500 | 2500 | 2480 | 2500 | 2640 | 1500 2000 2500 |
500 2000 2500 |
180 | 180 | 63 | 112 |
| LS160 | 2500 | 2500 | 2500 | 2480 | 2500 | 2640 | 200 | 180 | 90 | 150 | ||
| LS200 | 2500 | 2500 | 2500 | 2480 | 2500 | 2640 | 225 | 180 | 112 | 180 | ||
| LS250 | 3000 | 3000 | 3000 | 2980 | 3000 | 2140 | 250 | 200 | 140 | 224 | ||
| LS315 | 3000 | 3000 | 3000 | 2980 | 3000 | 2140 | 330 | 220 | 180 | 280 | ||
| LS400 | 3000 | 3000 | 3000 | 2980 | 3000 | 2140 | 350 | 227 | 224 | 355 | ||
| LS500 | 3000 | 3000 | 3000 | 3000 | 3000 | 3160 | 2000 2500 3500 |
2000 2500 3500 |
400 | 250 | 280 | 400 |
| LS630 | 3000 | 3000 | 3000 | 3000 | 3000 | 3160 | 450 | 300 | 355 | 500 | ||
| LS800 | 3000 | 3000 | 3000 | 3000 | 3000 | 3160 | 550 | 340 | 450 | 630 | ||
| LS1000 | 3000 | 3000 | 3000 | 3000 | 3000 | 3160 | 650 | 360 | 560 | 710 | ||
| LS1000 | 3000 | 3000 | 3000 | 3000 | 3000 | 3160 | 800 | 380 | 710 | 800 | ||
| 规格型号 | R | S | Z | 0 | H | V | J | P | T |
| LS100 | 180 | 112 | 40 | 178 | 120 | 160 | 14 | 60 | 163 |
| LS160 | 200 | 150 | 50 | 266 | 120 | 160 | 14 | 60 | 190 |
| LS200 | 225 | 180 | 60 | 320 | 160 | 200 | 14 | 60 | 212 |
| LS250 | 250 | 224 | 70 | 370 | 200 | 230 | 16 | 60 | 240 |
| LS315 | 390 | 250 | 80 | 443 | 300 | 350 | 20 | 60 | 340 |
| LS400 | 390 | 280 | 90 | 533 | 320 | 400 | 24 | 60 | 384 |
| LS500 | 400 | 340 | 105 | 653 | 400 | 500 | 24 | 80 | 440 |
| LS630 | 450 | 420 | 120 | 790 | 500 | 630 | 24 | 80 | 555 |
| LS800 | 550 | 520 | 135 | 970 | 632 | 800 | 30 | 80 | 650 |
| LS1000 | 850 | 630 | 150 | 1100 | 710 | 1000 | 30 | 80 | 760 |
| LS1000 | 800 | 760 | 170 | 1440 | 800 | 1250 | 30 | 80 | 910 |

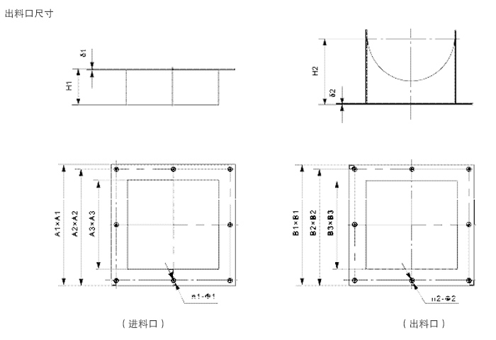
| 参数 | LS160 | LS200 | LS250 | LS315 | LS400 | LS500 | LS630 | LS800 | LS1000 | LS1250 |
| A1 | 246 | 306 | 356 | 444 | 528 | 658 | 794 | 960 | 1160 | 1410×1160 |
| A2 | 226 | 272 | 330 | 394 | 492 | 608 | 752 | 888 | 1090 | 1338×1090 |
| A3 | 180 | 220 | 270 | 334 | 420 | 524 | 660 | 800 | 1000 | 1250×1000 |
| H1 | 75 | 100 | 120 | 140 | 160 | 160 | 180 | 180 | 200 | 200 |
| ?1 | 3 | 3 | 3 | 4 | 4 | 4 | 6 | 6 | 8 | 8 |
| n1 | 8 | 8 | 8 | 8 | 8 | 8 | 8 | 16 | 20 | 22 |
| φ1 | 9 | 9 | 9 | 13 | 13 | 13 | 17 | 14 | 18 | 18 |
| B1 | 252 | 312 | 374 | 442 | 540 | 666 | 806 | 960 | 1160 | 1410×1160 |
| B2 | 226 | 272 | 330 | 402 | 496 | 608 | 752 | 888 | 1090 | 1338×1090 |
| B2 | 186 | 226 | 276 | 342 | 432 | 532 | 668 | 800 | 1000 | 1250×1000 |
| H2 | 135 | 165 | 195 | 225 | 280 | 340 | 430 | 520 | 630 | 760 |
| ?2 | 3 | 3 | 4 | 4 | 4 | 4 | 6 | 6 | 8 | 8 |
| n2 | 8 | 8 | 8 | 8 | 8 | 8 | 8 | 16 | 20 | 22 |
| φ2 | 9 | 9 | 9 | 3 | 163 | 17 | 17 | 14 | 18 | 18 |
| R | 93 | 113 | 138 | 171 | 216 | 266 | 334 | 419 | 522 | 647 |

材质:可根据输送物料选用碳钢或不锈钢材质。

倾角:可根据用户要求水平或大倾角设计,LS型倾角为≤15°,大于20°可选用GX管式螺旋输送机,倾角为≤45°,无轴的管式螺旋输送机角度为30°。

输送长度:直径由100mm~1250mm,共十二种规格,分为单驱动和双驱动两种形式,单驱动螺旋机长度可达40米(特大型30米),双驱动螺旋机采用中间断开轴结构,长度可达80米(特大型60米),螺旋机长度每 0.5米。 一档,可根据需要选择。
输送方向:能逆向输送,也可使一台输送机同时向两个方向输送物料,即集向中心或远离中心。
大汉管式螺旋输送机厂家是一家专业从事输送设备制造和定制的企业,拥有多年的行业经验和技术积累。我们致力于为客户提供高品质、高效率的输送解决方案,满足不同行业的物料输送需求。
管式螺旋输送机视频
我们的优势
专业团队:拥有经验丰富的工程师和技术人员,能够根据客户需求提供定制化的设计方案。
优质设备:采用先进的生产设备和工艺,确保产品质量稳定可靠。
多样化产品:提供各种规格和型号的管式螺旋输送机,满足不同物料输送的需求。
我们的产品特点
采用先进的输送技术,实现高效率的物料输送。
产品运行稳定可靠,减少生产过程中的故障和停机时间。
适用于不同行业和工艺要求,具有较强的适应性。
设计符合环保标准,减少能源消耗和物料泄漏。
如果您正在寻找可靠的管式螺旋输送机厂家,大汉管式螺旋输送机厂家将是您的理想选择。欢迎联系我们,我们将竭诚为您提供专业的服务和优质的产品。
新乡大汉作为直销型生产厂家,有自己的销售人员与客户进行直接交流,整个销售过程简单、透明,给客户的价格都是设备的出厂价,其设备价格便宜。
在服务商,我们可以为客户提供设备的安装、调试、操作培训、维修及保养等一站式服务,还有售后团队,不论节假日都有值班人员24小时为客户服务,并且还可为客户提供定制服务,具体详情可免费拨打咨询热线:0373-2682333.
管式螺旋输送机价格受多个因素影响,具体价格需要根据您的实际需求进行报价。

参考价格:管式螺旋输送机价格一般在3200-40000元不等。
小型管式螺旋输送机(长度小于5米,输送量较小):价格在几千元之间。
中型管式螺旋输送机(长度5-15米,输送量中等):价格在几万元之间。
大型管式螺旋输送机(长度超过15米,输送量较大):价格在十几万元甚至更高。
以下列举一些影响价格的主要因素:
1. 输送机尺寸:输送机长度越长,价格越高。输送机直径越大,价格越高。
2. 输送量:输送量越大,需要更大的电机功率,价格越高。
3. 物料特性:输送物料的腐蚀性、温度、易燃易爆性等都会影响机壳材质和设计,进而影响价格。
4. 材质:不锈钢、碳钢等不同材质价格差异较大,不锈钢材质的价格更高。耐磨、耐腐蚀材料价格也较高。
5. 传动方式:电机功率越大,价格越高。不同类型的减速器价格差异较大。
6. 其他因素:例如进料口、出料口、清扫装置等附件,都会影响价格。
获取准确报价:
建议您联系我们的生产厂家,并提供以下信息:
输送机长度、直径
输送量
输送物料
材质要求
控制系统需求
安装方式
厂家会根据您的实际需求,为您提供详细的报价和技术方案。

Copyright ? 2008-2025 螺旋输送机厂家-新乡市大汉振动机械有限公司 All Rights Reserved 版权所有
网站备案号:豫ICP备09002479号-47
网址:http://www.baowfw.cn/新乡大汉机械厂家专业生产螺旋输送机、皮带输送机、提升机等机械







