优质合金钢圆环链物料温度≤250℃输送量比普通机型提高30%以上
售价:18000-50000元依据型号规格、链条选择情况有所差异
粉状、粒状及小块状的无磨琢及磨琢性小的物料输送量:5.4-365立方/时提升高度:40米
用户保障:30天价保,30天质量问题包退,365天免费维护
带料试机:携带物料免费试机,专人接待
极速发货:常规型号当天发货,定制型号7天内发货
无忧售后:定期回访,售后跟踪,7*24h客服在线
选择角度碳钢不锈钢
立即订购全国统一热线:0373—268 2333
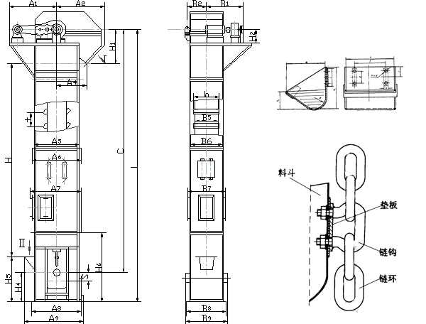
TH环链式斗式提升机是环形料条带动料斗提升物料的设备,采用混合式或重力卸料,挖取式装料,中部机壳分单、双通道两种形式为机内重锤箱恒力自动张紧。链轮采用可换轮缘组合式结构。使用寿命长,轮缘更换工作简便。适用于输送粉状、粒状及小块状的无磨琢及磨琢性小的物料,物料温度在250℃以下。
环链式斗式提升机有两种料斗:
Zh型(中深斗)一般适用于输送湿的,易结块的,较难抛出的物料,如湿砂、型砂、化肥、碱粉等。
Sh型(深斗)适用于输送干燥的,松散易于抛出的物料,如水泥、熟料、碎石、煤块等,其输送量也比Zh型的大。
TH型环链式斗式提升机适用于向上输送松散密度P<1.5t/m3粉状、粒状和小块状的无磨琢性和半磨琢性散状物料,如煤、砂、焦末、水泥、碎矿石等。本机的特点为快速离心卸料:并采用环链为牵引构件,故不适于输送大块磨琢性及掏取阻力大的物料。
单通道斗式提升机提升鸡精
双通道环链式斗式提升机提升砂石
1、输送量大,相同斗宽的TH型与HL型相比,输送量增大近一倍。
2、改进机型的提升输送量比普通机型提高30%以上。提升高度可达40米。
3、牵引件为低合金钢制造的高强度圆环链,经合理热处理后,抗拉强度高,耐磨性好,使用寿命长。
4、采用了组装式链轮。由轮体、轮缘用高强度螺栓联接而成。在链轮磨损到一定程度后,可拧下螺栓,拆换轮缘,更换方便,且节约拆料、降低了维修费;
5、下部采用了重锤杠杆式张紧装置,即可实现自动张紧。一次安装后不需调整,又可以保持恒定的张紧力,从而保证机器的正常运转,避免了打滑或脱链。
6、传动装置安装了逆止器,有效防止"倒料"的发生。
TH环链式斗式提升机由运行部件、驱动装置、上部装置、中部机壳、下部装置组成。
运行部件---由料斗和专用圆环链条组成,链条抗拉强度高、耐磨性好。
驱动装置---采用多种驱动组合驱动,(依用户实际需要而定).驱动平台上装有检修架和栏杆。驱动制装置分左和右装两种。
上部装置---安装有轨道(双排链)、逆止器、卸料口装有防回料橡胶板。
中间节---部分中间节装有轨道(双链),以防止链条工作中摆动。
下部装置---安装有自动张紧装置。
TH环链式料斗把物料从下面的储藏中舀起,随着输送带或链提升到顶部,绕过顶轮后向下翻转,然后将物料倾入接受槽内,链传动的斗式提升机一般装有两条平行的传动链,上或下面有一对传动链轮,下或上面是一对改向链轮。
注意事项
1、TH型环链式斗式提升机允许的较高温度为250℃,如果温度过高,会发生料斗和壳体变形,降低设备的工作性能和使用寿命;
2、如果发生提升机底部堆料造成设备无法运行的,这有可能是由于提升机瞬间提升量不足造成的;因此,选型时应按较大瞬间提升量来计算。
1、卸下环链式斗式提升机的上部壳体,在能够的最高点吊起两条链。
2、举起被动轴并卸下吊斗及相应的吊钩。
3、从环链式提升机上取下链以相反的顺序,重复上述过程把已换好的链在地面上装置并在吊斗旁展开。
4、为防止危险和麻烦,要确保在装置最后一个吊斗时链不移动。
5、传动带张力用加速箱张紧器来实现,加速箱备有注油、排油和油量塞。轴承轴承座分为:驱动轴和脚轴,都备有润滑脂嘴。或是装有"长寿命润滑"轴承。
6、提升机空负荷试运转并紧固一切料斗牢固螺栓,并将其用电焊点固;
7、调整环链斗式提升机底部重锤位置并带料试运转。
Copyright ? 2008-2019螺旋输送机厂家-新乡市大汉振动机械有限公司 All Rights Reserved 版权所有
网站备案号:豫ICP备09002479号-47