
K型往复式给料机产品概述: K型往复式给料机是利用曲柄连杆机构拖动下倾5的底板在辊上做直线往复运动,从而把煤或其它磨琢性小,粘性不大的松散粒状,粉状物料从给料设备中均匀地卸到受料设备中。 K型往复式给料机适用于矿山、矿井、选煤厂、中站、输煤车间、港口散料码头等散料转运,可将散料经料仓或直接进行均匀的转载到胶带机或其它筛选设备、贮存装置等配合使用。
全国统一销售热线
免费获取报价
K型往复式给料机也加往复式给煤机,是利用曲柄连杆机构拖动下倾5°的底板在辊上做直线往复运动,从而把煤或其它磨琢性小,粘性不大的松散粒状,粉状物料从给料设备中均匀地卸到受料设备中。
K型往复式给料机适用于矿山、矿井、选煤厂、中站、输煤车间、港口散料码头等散料转运,可将散料经料仓或直接进行均匀的转载到胶带机或其它筛选设备、贮存装置等配合使用。实现对矿石、砂煤、粮食等散装物料的均匀
给料.本设备机体安装于料斗下,传动装置为悬挂式,根据给料量的大小可分:K1、K2、K3、K4等几种型号。

1.工作可靠、寿命长。
2.重量轻,体积小,维护保养方便。
3.结构简单,运行可靠,调节安装方便。
4.封闭式框架结构,大大提高了机架的刚度。
5.装有限矩型液力偶合器,能满载启动,过载保护。
6.大给料量可达1200吨/小时(煤),是目前国内大的往复式给料机。
7.采用了先进的平面二次包络环面骡杆减速器设计,承载能力大,传动效率高。
8.侧衬板、斜衬板与底板之间留缝可调,能比较准确地控制留缝大小,大大减少了漏料。
9.驱动装置对称布置,并采用双推杆 ,使整机爱力均衡,传动平稳,消除了底板往复时的扭摆现象。
10底板有立向筋板,并用三道通长托辊支承,保证了底板本身刚度,消除了现有往复式给料机底板工作中弯曲变形的弊病。
11.衬板由小块耐磨钢板拼成,这样不仅更换时轻便容易,而且可以根据实际磨损情况,有针对性地更换磨损了的衬板块,从而使材料合理利用 ,降低维修费用。

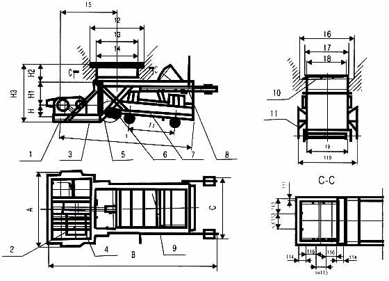
K型往复式给料机是由机架、底板(给料槽)传动平台、漏斗闸门、托辊等组成。其传动原理:当电动机开动后,经弹性联轴器、减速器、曲柄连轩机构拖动倾斜的底板在插辊上作直线往复运动,将煤均匀地卸到运输机械或其它筛选设备上。该机设有带漏斗、带调节阀门和不带漏斗、不带调节阀门两种形式。

| 型号 | 17 | 18 | 19 | 110 | 111 | 112 | n*113 | 114 | n*115 | 116 | N*MD |
| K-0 | 550 | 500 | 500 | 830 | 35 | 191 | 1*200 | 131 | 1*190 | 190 | 14*M20 |
| K-1 | 800 | 750 | 750 | 1080 | 35 | 275 | 1*280 | 131 | 1*190 | 190 | 16*M20 |
| K-2 | 800 | 750 | 750 | 1080 | 35 | 208 | 1*208 | 91 | 1*225 | 225 | 17*M20 |
| K-3 | 1050 | 1000 | 1000 | 1300 | 35 | 273 | 1*273 | 91 | 1*290 | 290 | 17*M20 |
| K-4 | 1300 | 1250 | 1580 | 1580 | 35 | 270 | 1*270 | 96 | 1*320 | 220 | 20*M20 |
| 型号 | A | B | C | H | H1 | H2 | H3 | L | 11 | 12 | 13 | 14 | 15 | 16 |
| K-0 | 1360 | 3100 | 846 | 210 | 210 | 325 | 1051 | 2450 | 840 | 1000 | 800 | 750 | 1040 | 750 |
| K-1 | 1360 | 3100 | 1112 | 210 | 210 | 325 | 1051 | 2450 | 840 | 1000 | 800 | 750 | 1040 | 1000 |
| K-2 | 1360 | 3540 | 1112 | 208 | 208 | 325 | 1297 | 2850 | 1150 | 1250 | 1050 | 1000 | 940 | 1000 |
| K-3 | 1352 | 3950 | 1360 | 250 | 250 | 345 | 1340 | 3270 | 1400 | 1500 | 1300 | 1250 | 1157 | 1250 |
| K-4 | 1622 | 4740 | 1632 | 330 | 330 | 345 | 1543 | 3850 | 1700 | 1750 | 1550 | 1550 | 1435 | 1500 |
说明:
1.K型往复式给料机有带漏斗与不带漏斗及带调节闸门与不带闸门组合成的多种型式,如带漏斗,带调节闸门;带漏斗不带调节闸门。
2.调调节闸门时,其给料量受调节闸门控制。
3.一般供货时为普通电机,电压380V,ZQ型减速机,如有特殊要求,需订货时说明,如用660电压电机,防爆电机,其它型号减速机等。
| 型号规格 | K-0 | K-1 | K-2 | K-3 | K-4 | |||||||
| 给料能力(t/h) | 底版行程 | 曲柄位置 | 无烟煤 | 烟煤 | 无烟煤 | 烟煤 | 无烟煤 | 烟煤 | 无烟煤 | 烟煤 | 无烟煤 | 烟煤 |
| 200mm | 4 | 100 | 90 | 150 | 135 | 225 | 200 | 330 | 300 | 590 | 530 | |
| 150mm | 3 | 75 | 67 | 112 | 100 | 170 | 150 | 247 | 220 | 440 | 395 | |
| 100mm | 2 | 50 | 45 | 75 | 68 | 133 | 100 | 165 | 150 | 295 | 268 | |
| 50mm | 1 | 25 | 22 | 34 | 34 | 55 | 50 | 83 | 75 | 148 | 132 | |
| 曲柄转速(r/min) | 57 | 57 | 62 | 62 | 62 | |||||||
| 电动机 | 型号 |
YB160M1-8 Y160M1-8 |
YB160M1-8 Y160M1-8 |
YB160M1-8 Y160M1-8 |
YB160M1-6 Y160M1-6 |
YB160M1-6 Y160M1-6 |
||||||
| 功率(KW) | 4 | 4 | 4 | 7.5 | 18.5 | |||||||
| 转速(r/min) | 720 | 720 | 720 | 970 | 970 | |||||||
| 减速机 | 型号 | JZQ0-350 | JZQ0-350 | JZQ0-350 | JZQ-400 | JZQ-500 | ||||||
| 速比 | 12.64 | 12.64 | 12.64 | 15.75 | 15.75 | |||||||
| 允许大颗粒(mm) | 含量10%以下 | 250 | 350 | 400 | 500 | 700 | ||||||
| 含量10%以上 | 200 | 300 | 350 | 450 | 550 | |||||||
| 设备重量(kg) | 带料斗 | 1127 | 1251 | 1481 | 1927 | 2737 | ||||||
| 不带料斗 | 1026 | 1144 | 1342 | 1735 | 2505 | |||||||
1.往复式给料机是固定安装在储料仓口下,在安装前需要确定水平位置,将机架与仓口用螺栓紧固,然后再将传动平台安放在正确位置上,H形架与机架,传动平台焊牢,减速机、电动机找正安装,调节适当,用螺栓紧固。
2.安装后需要进行空负荷试车,运转当中,检查各部件工作是否正常,滚动轴承高温升不得高于60℃。
3.依据卸料要求调节生产率时,将曲柄部位销轴拔出,松动螺母,转动曲柄壳的位置“1、2、3、4”选择固定,将销轴插入,联结曲柄与曲柄与曲柄壳,紧固销轴和螺母,调整完毕后再开车。
1.签订合同时请写明型号规格、配何种电机、是否带漏斗和调节闸门。
2.随机技术文件:产品合格证、装箱单、产品使用说明书。
1.给料机运行前,煤仓内应贮有足够原煤量,以避免装煤入仓时,直接冲击底板(给煤板)。
2.每月连续工作后应检查机件有无松动等不正常现象,若有不正常现象出现,应立即检修。
3.给料机与煤直接接触的底衬板,其厚度磨损程度大于原厚度的二分之一必须进行修补或更换。
4.转动部件在连续工作六个月后,需检查一次,拉杆部分的机件必须保持正常配合,如有不正常现象,立即修复或更换。
5.对主要部件的维护:
a、减速机:每六个月检查一次,同时对滚动轴承和箱体进行清洗或更换润滑油。
b、电动机:按电动机规定的检修养护要求进行.
Copyright ? 2008-2019螺旋输送机厂家-新乡市大汉振动机械有限公司 All Rights Reserved 版权所有
网站备案号:豫ICP备09002479号-47

